
【安全閥廠家】美標安全閥的使用指南2023-02-18
美標安全閥當容器壓力超過設計規定時,美標安全閥自動開啟,排出氣體降低器內的過高壓,防止容器或管線破壞。
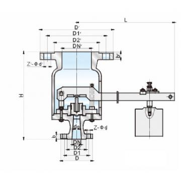
【安全閥廠家】先導式安全閥的工作原理及特點分析2023-02-08
先導式安全閥的作業原理和結構特色剖析先導式安全閥的結構特色先導式安全閥由主閥,先導式安全閥,溢流閥,接頭和導管組成。在正常運轉條件下,系統的中壓在主閥瓣的下方和上方均…
【安全閥廠家】安全閥管道布置設計要點簡介2023-02-08
安全閥應直立安裝并靠近被保護的設備或管道。如不能靠近布置,則從被保護的設備或管道到安全閥入口的管道總壓降,不應超過安全閥定壓值的3%。
【安全閥廠家】壓縮機用安全閥在哪種情況下不能使用?2023-02-02
?一個東西有沒有用,有時候要看它在的地方,如果用的不好,則會是一個很大的an全隱患。空壓機安全閥就是這么一個產品,下面小編給大家介紹一下壓縮機用安全閥在哪種情況下不能使…
【安全閥廠家】安全閥的選用與安裝注意事項,你知道么?2023-02-02
由操作溫度決定安全閥的使用溫度范圍,由操作壓力決定安全閥的公稱壓力。由計算出的安全閥的定壓值決定彈簧或杠桿的定壓范圍,再根據使用介質決定安全閥的材質和結構型式,再根據…
【安全閥廠家】如何調試彈簧式安全閥?2023-01-30
?在彈簧式安全閥zui上端有一個調節螺母,是可以調節的。但是zui好不要亂動,因為個人沒這個資格,出了事故,造成的破壞是要付重大刑事責任的,需要到取得相關資質的機構進行校驗,…
【安全閥廠家】先導式安全閥的選擇要求是什么?2023-01-30
先導式安全閥是一種安全閥,通過從導閥中排出介質來驅動或控制主閥。導閥本身是一個標準的彈簧直接負載安全閥。安全閥屬于自動閥類,主要用于鍋爐、壓力容器和管道,控制壓力不超…
【安全閥廠家】先導式安全閥分類及特點2022-12-16
先導式安全閥(又稱脈沖式安全閥),是一種依靠從導閥排出介質來驅動或控制主閥的安全閥,導閥本身是標準的彈簧直接載荷式安全閥。安全閥屬于自動閥類,主要用于鍋爐、壓力容器和管…
【安全閥廠家】先導式安全閥結構特點與工作原理2022-12-16
先導式安全閥?是一種an全保護用閥,它的啟閉件受外力作用下處于常閉狀態,當設備或管道內的介質壓力升高,超過規定值時自動開啟,通過向系統外排放介質來防止管道或設備內介質壓…
【安全閥廠家】煉油安全閥?的流道設計2022-12-09
根據煉油安全閥的結構特點,建立了位移特征的彈簧剛度、喉徑的計算數學模型,建立了零件和裝配的三維幾何模型。分析的基礎上提煉安全閥閥流場和壓力場的基礎上研究其流量變化在不同…
相關產品